Makléř: Kohut Jaromír
Telefon: 777 663 ...
E-mail: kohut.j ...
Zobrazit celý kontaktTelefon: 777 663 670, 777 663 670
E-mail: kohut.jaromir@realitydrk.cz
Nemovitost nabízí
Listrum real s.r.o. - člen DRUŽSTVA REALITNÍCH KANCELÁŘÍ ČR
Májová 415/10, 735 42 Těrlicko - Horní Těrlicko
Zobrazit kontakt na RK596 811 051
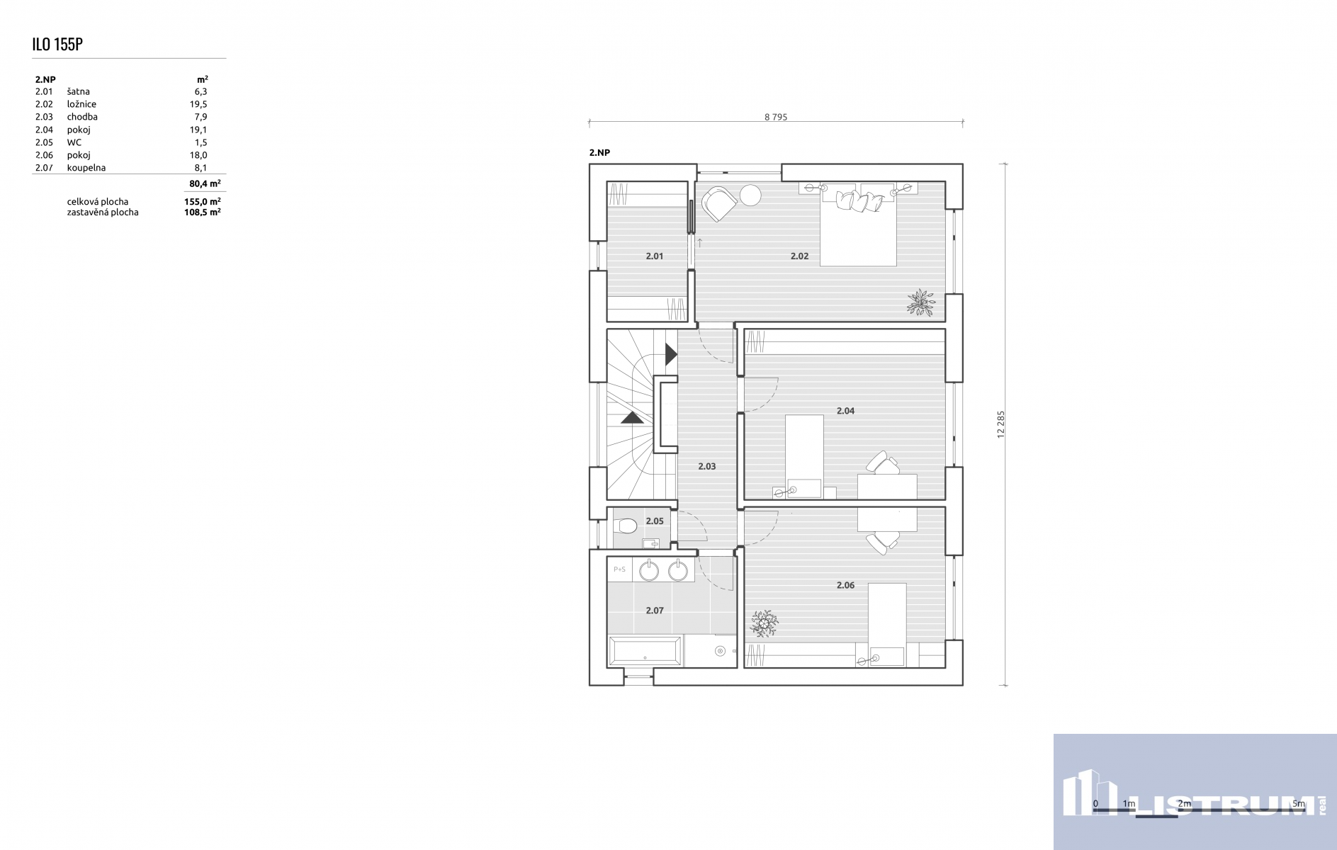
Nabídka k pořízení moderní dřevostavby ve fázi projektu s výstavbou na klíč od renomované společnosti ILO DOMY. Dvojpodlažní dům s podlahovou plochou 155 m2 a zastavěnou plochou 109 m2 nabízí komfortní dispozici 5+kk, která je ideální pro rodinné bydlení. Dům bude postaven na prostorném a velmi pěkném pozemku s výhledem do širokého okolí o velikosti 1.500 m2 v obci Horní Domaslavice. Moderní dřevostavba je navržena s důrazem na kvalitu, energetickou úspornost a ekologii. Vytápění domu je zajištěno efektivním tepelným čerpadlem, což zaručuje nízké provozní náklady a šetrnost k životnímu prostředí. Součástí domu je také čistička odpadních vod. Sjezd na pozemek je zajištěn z obecní asfaltové komunikace. Dispozice domu v 1. NP zahrnuje prostorný obývací pokoj s kuchyní (37,9 m2), pracovnu (14,3 m2), technickou místnost (6,9 m2), halu (8,7 m2) WC a zádveří (5,3 m2). Užitná plocha 1. NP činí 74,6 m2. Z obývacího pokoje a pracovny vstup francouzskými okny na terasu a zahradu. Dispozice domu v 2. NP zahrnuje ložnici (19,5 m2) s navazující šatnou (6,3 m2), 2 x dětský pokoj (19,1 m2 a 18 m2), koupelnu (8,1 m2), WC a chodbu (7,9 m2). Užitná plocha 2. NP činí 80,4 m2. Dům je možné pořídit ve dvou barevných variantách, podle Vašich preferencí. V ceně je obsažen pozemek a dům s finálními povrchy v interiéru. V ceně nejsou započítány terénní úpravy pozemku, napojení na sítě, čistička odpadních vod a kuchyňská linka. Dům je také možno pořídit i tzv. K dokončení, kdy oproti standardní variantě není dodáno tepelné čerpadlo, výmalba, obklady, dlažba, podlahové krytiny, zásuvky a vypínače, sanita a interiérové dveře. V této variantě stojí dům 8.340.000,-Kč. Obec Horní Domaslavice je klidná a velmi pěkná lokalita v blízkosti Žermanické přehrady a s výhledem na ni, stejně tak i na panorama Beskyd, která nabízí příjemné bydlení v blízkosti přírody, ale současně s vynikající dostupností do Ostravy, F-M, Havířova a na dálnici D48 (5 km). V blízkém okolí najdete základní občanskou vybavenost, jako jsou obchody, školka, škola, sportovní zařízení. Okolí obce je ideální pro milovníky přírody a aktivního odpočinku, s množstvím turistických a cyklistických tras. Tento projekt je ideální volbou pro ty, kteří hledají moderní a ekologické bydlení v klidné lokalitě s rychlým přístupem do města. Neváhejte nás kontaktovat pro více informací a sjednání prohlídky. <a href="https://www.eurobydleni.cz/byty/2_kk/klatovy/obec-susice/prodej/"><strong>Prodej bytu 2+kk Sušice</strong></a>
RD 4+kk v obci Horní Domaslavice
Nabídka k pořízení moderní dřevostavby ve fázi projektu s výstavbou na klíč od renomované společnosti ILO DOMY. Jednopodlažní dům s podlahovou…
RD 4+kk v obci Horní Domaslavice
Nabídka k pořízení moderní dřevostavby ve fázi projektu s výstavbou na klíč od renomované společnosti ILO DOMY. Jednopodlažní dům s podlahovou…
Prodej rodinného domu Horní Domaslavice na Eurobydleni.cz