Makléř: Kohut Jaromír
Telefon: 777 663 ...
E-mail: kohut.j ...
Zobrazit celý kontaktTelefon: 777 663 670, 777 663 670
E-mail: kohut.jaromir@realitydrk.cz
Nemovitost nabízí
Listrum real s.r.o. - člen DRUŽSTVA REALITNÍCH KANCELÁŘÍ ČR
Májová 415/10, 735 42 Těrlicko - Horní Těrlicko
Zobrazit kontakt na RK596 811 051
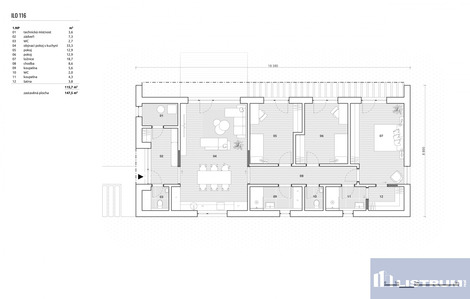
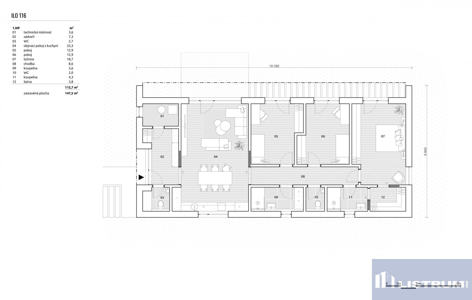
Nabídka k pořízení moderní dřevostavby ve fázi projektu s výstavbou na klíč od renomované společnosti ILO DOMY. Jednopodlažní dům s podlahovou plochou 116 m2 a zastavěnou plochou 148 m2 nabízí komfortní dispozici 4+kk, která je ideální pro rodinné bydlení. Dům bude postaven na prostorném a velmi pěkném pozemku s výhledem do širokého okolí o velikosti 1.500 m2 v obci Horní Domaslavice. Moderní dřevostavba je navržena s důrazem na kvalitu, energetickou úspornost a ekologii. Vytápění domu je zajištěno efektivním tepelným čerpadlem, což zaručuje nízké provozní náklady a šetrnost k životnímu prostředí. Součástí domu je také čistička odpadních vod. Sjezd na pozemek je zajištěn z obecní asfaltové komunikace. Dispozice domu zahrnuje prostorný obývací pokoj s kuchyňským koutem (33 m2), tři samostatné ložnice (18,7 m2, 12,9 m2, 12,9 m2), 2x koupelnu s moderním vybavením (5,6 m2, 4,3 m2), 2x samostatné WC, šatnu (3,8 m2), technickou místnost (3,6 m2) chodbu a zádveří. Dům je možné pořídit ve dvou barevných variantách, podle Vašich preferencí. Příčně orientovaný obývací pokoj od sebe pomyslně odděluje denní část dispozice od zadní soukromé části domu. Soukromá část nabízí pohodlí tří pokojů a hygienického zázemí. Každý pokoj má vstup do zahrady nebo na terasu. Exteriér domu kombinuje klasickou a strukturovanou omítku, přičemž čelo domu je obloženo dřevem. V ceně je obsažen pozemek a dům s finálními povrchy v interiéru. V ceně nejsou započítány terénní úpravy pozemku, napojení na sítě, čistička odpadních vod a kuchyňská linka Dům je také možno pořídit i tzv. K dokončení, kdy oproti standardní variantě není dodáno tepelné čerpadlo, výmalba, obklady, dlažba, podlahové krytiny, zásuvky a vypínače, sanita a interiérové dveře. V této variantě stojí dům 6.900.000,-Kč. Obec Horní Domaslavice je klidná a velmi pěkná lokalita v blízkosti Žermanické přehrady a s výhledem na ni, stejně tak i na panorama Beskyd, která nabízí příjemné bydlení v blízkosti přírody, ale současně s vynikající dostupností do Ostravy, F-M, Havířova a na dálnici D48 (5 km). V blízkém okolí najdete základní občanskou vybavenost, jako jsou obchody, školka, škola, sportovní zařízení. Okolí obce je ideální pro milovníky přírody a aktivního odpočinku, s množstvím turistických a cyklistických tras. Tento projekt je ideální volbou pro ty, kteří hledají moderní a ekologické bydlení v klidné lokalitě s rychlým přístupem do města. Neváhejte nás kontaktovat pro více informací a sjednání prohlídky. <a href="https://www.eurobydleni.cz/komercni-nemovitosti/kancelar/most/obec-most/pronajem/"><strong>Pronájem kanceláře Most</strong></a>
RD 4+kk v obci Horní Domaslavice
Nabídka k pořízení moderní dřevostavby ve fázi projektu s výstavbou na klíč od renomované společnosti ILO DOMY. Jednopodlažní dům s podlahovou…
RD 4+kk v obci Horní Domaslavice
Nabídka k pořízení moderní dřevostavby ve fázi projektu s výstavbou na klíč od renomované společnosti ILO DOMY. Jednopodlažní dům s podlahovou…
Prodej rodinného domu Horní Domaslavice na Eurobydleni.cz