Makléř: Lederer Ludvík
Telefon: 602 737 ...
E-mail: lederer ...
Zobrazit celý kontaktTelefon: 602 737 222
E-mail: lederer@rklederer.cz
Nemovitost nabízí
Lederer reality s.r.o.
U Dubu 797/29, Brno
Zobrazit kontakt na RK
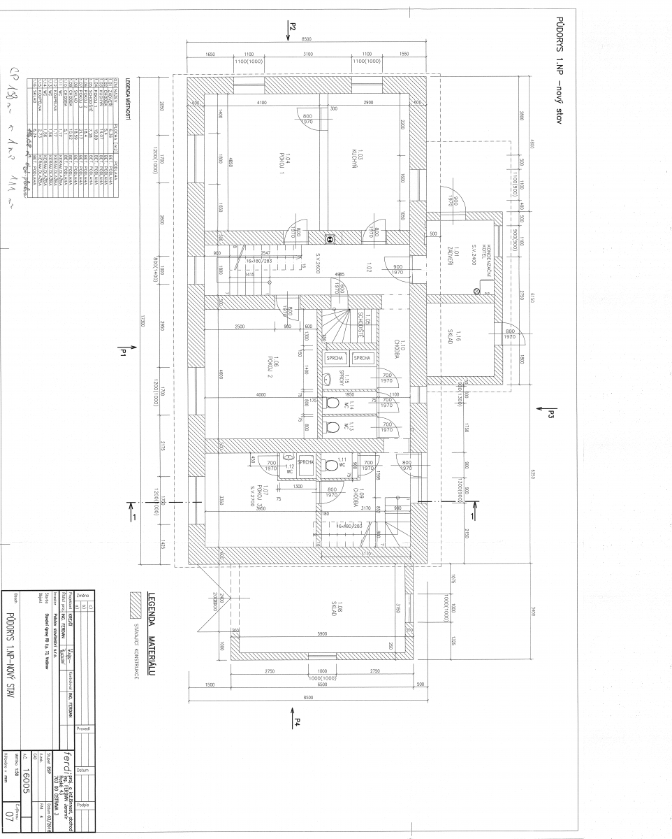
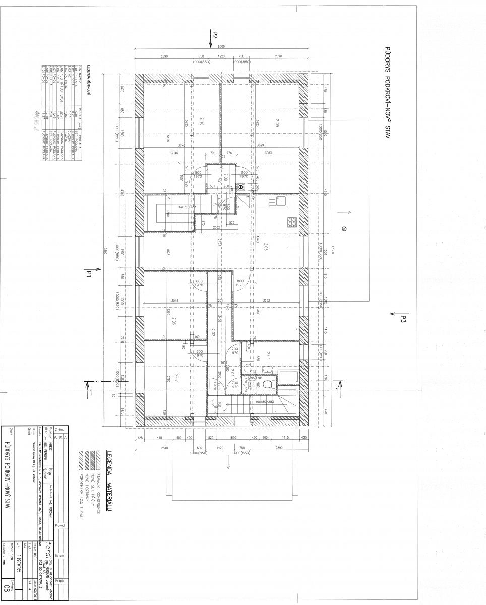
Nabízíme k prodeji samostatně stojící rodinný dům nacházející se ve Vratimově, který je aktuálně ve fázi rekonstrukce. Tento cihlový patrový dům nabízí prostorné zázemí s více pokoji a užitnou plochou 200 m, což zaručuje pohodlné bydlení i pro větší rodinu, nebo jiné využití např. sídlo firmy s ubytováním a pod. RD lze rozdělit na více bytových či kancelářských jednotek. Celková podlahová plocha dosahuje 249 m. Dům je ideální volbou pro ty, kteří hledají nemovitost, jež si mohou upravit podle svých představ. Velkou výhodou je rozlehlý pozemek o velikosti 645 m, který poskytuje dostatek prostoru pro zahradu nebo další venkovní aktivity. Lze využít i pro parkování více vozidel. Součástí nemovitosti je sklep pro uskladnění sezonních věcí a garáž vhodná k parkování jednoho automobilu. Je zde kvalitní dopravní dostupnost, a to díky blízkosti vlakového nádraží, silnice a autobusových zastávek, což zajišťuje pohodlné cestování. RD se prodává v rámci insolvenčního řízení, za minimální cenu dle znaleckého posudku. Omezení na domě váznoucí budou po prodeji insolvenčním správcem vymazána. Na pořízení této nemovitosti lze čerpat i úvěr, ale s ručením jinou nemovitostí. Více informací o nemovitosti, jakož i znalecký posudek, Penb, a dokumentaci Vám poskytne makléř. Prohlídky na předmětné nemovitosti budou po předchozí domluvě 26.2.2026 a 9.3.2026 Dům má průkaz energetické náročnosti ve třídě C, s ukazatelem 99,0 kWh/m. Uvažujete-li o koupi domu, který kombinuje prostor a dobrou dostupnost, tento by pro Vás mohl být tou správnou volbou. <a href="https://www.eurobydleni.cz/byty/3_1/pardubice/obec-pardubice/prodej/"><strong>Prodej bytu 3+1 Pardubice</strong></a>
Prodej rodinného domu, 128 m2, Vratimov
Nabízíme k prodeji dům nacházející se v klidné ulici, v žádané lokalitě obce Vratimov. Předností této nemovitosti je vzrostlá zahrada s okrasnými a…
Prodej rodinného domu, 393 m2, Vratimov, ul. Datyňská
Hledáte výjimečné rodinné bydlení s obrovským potenciálem? Ve Vratimově nabízíme zděný dvoupodlažní rodinný dům, který vyniká velkorysým prostorem,…
Prodej rodinného domu Vratimov na Eurobydleni.cz