Makléř: Horská Martina
Telefon: 800 100 ...
E-mail: info@mm ...
Zobrazit celý kontaktTelefon: 800 100 446
E-mail: info@mmreality.cz
Nemovitost nabízí
M&M reality holding a.s.
Krakovská 1675/2, 110 00 Praha 1
Zobrazit kontakt na RK800 100 446
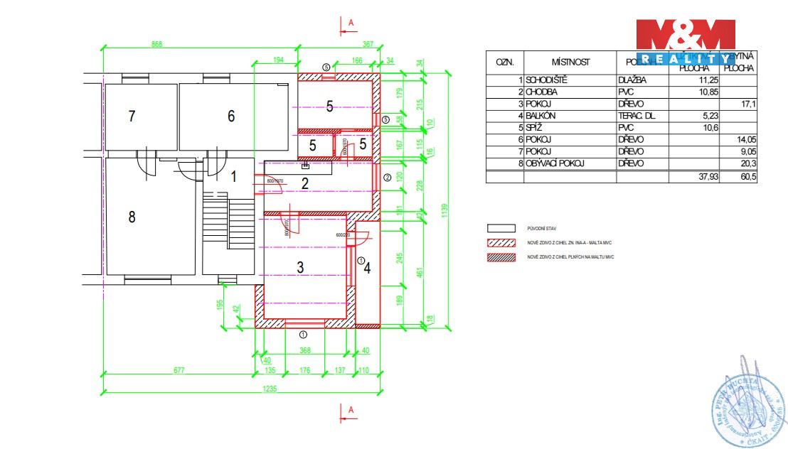
Chcete vlastní kus zeleně a současně zůstat v blízkosti města? Toto splňuje dům v Bludovicích-na kopci, s výhledem do daleka, obklopen velkorysou oplocenou zahradou. Patrový, podsklepený dům nabízí byt v přízemí 3+1 s příslušenstvím a v patře slunný byt 4+1 s balkonem, tudíž uspokojí i dvě spřízněné rodiny, případně zde můžete pohodlně podnikat a současně bydlet. Místa k parkování je fůra a ve městě jste co by dup, také od sousedů máte odstup a tudíž soukromí. JV a JZ orientace vám zajistí přirozené světlo po celý den. K domu náleží, 2x hospodářská budova, garáž a vlastní studna, která může sloužit jako doplňkový zdroj užitkové vody. Vytápění je řešeno plynovým kotlem, dům je napojen na veřejnou kanalizaci a vodovodní řad. Díky svému stavu a dispozici je zde příležitost vytvořit si zázemí dle vlastního vkusu a rozpočtu. V současné době nabízíme vlastní financování za skvělou úrokovou sazbu. Neváhejte a sjednejte si včas prohlídku s makléřem, ceny nemovitostí stále stoupají.
Prodej rodinného domu, 239 m2, Havířov, ul. U Zborůvky
Ve výhradním zastoupení majitelů si dovolujeme nabídnout přepychový rodinný dům o dispozici 6+kk s krytým bazénem, wellness, nadstandardní garáží a…
Rodinný dům se dvěma bytovými jednotkami, garáží a zahrádkou, Prostřední Suchá - Havířov.
Rodinný dům se dvěma bytovými jednotkami v 1.NP 3+1 ve 2.NP 4+1 + 2x balkón, garáží a zahrádkou za cenu bytu. Prodej dvoupodlažního, oploceného,…