Makléř: Rubina Patrik
Telefon: 720 044 ...
E-mail: patrik. ...
Zobrazit celý kontaktTelefon: 720 044 265
E-mail: patrik.rubina@century21.cz
Nemovitost nabízí
CENTURY 21 Real Tip
Poděbradova 909/41, 702 00 Ostrava
www.century21.cz/kancelar-real-tip
Zobrazit kontakt na RK
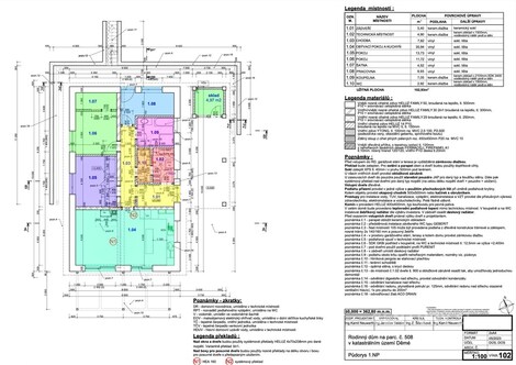
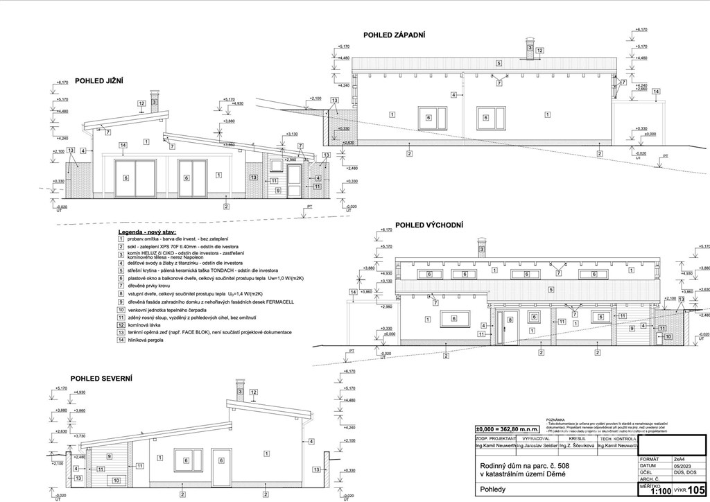
Chcete začít stavět ihned bez zbytečného čekání na úřady? Tenhle pozemek se schváleným stavebním povolením Vám to umožní. Máte sen o vlastním rodinném domě, kde se příroda snoubí s pohodlím moderního života? Tento stavební pozemek o rozloze 1229m2, se stavebním povolením, s nádherným výhledem na Zámek Fulnek a Beskydy, je připraven splnit vaše očekávání. Pozemek se nachází v klidné části Fulneku - Děrné. Přímo za ním se rozprostírá louka, kde se pasou koně, a okolí doplňují pole a lesík, které zajistí absolutní soukromí a pohodu. Navíc je již schválené stavební povolení na moderní jednopodlažní dům 4+kk o užitné ploše 103m2. Tento jednopodlažní dům je navržen tak, aby splňoval potřeby moderní rodiny velký obývací pokoj s kuchyňským koutem, odkud se přes francouzská okna dostanete na prostornou terasu s výhledem na zahradu, zámek Fulnek a Beskydy. Samostatná ložnice s šatnou bude váš klidný úkryt s dostatkem místa pro vše potřebné. V domě jsou další dva pokoje, z nichž jeden má přímý vstup ze zahrady. Díky tomu je ideální jako pracovna nebo pokoj pro hosty. Prostorná koupelna je vybavena vanou i sprchovým koutem. Technická místnost a venkovní sklad zajistí dostatek místa pro sezónní věci nebo zahradní vybavení. Podlahové topení a kamna v obývacím pokoji nabízí maximální komfort a úsporu peněz. Kryté parkovací stání pro vaše auto zajistí, že už nikdy nebudete muset ometat sníh z auta. Soukromí je zajištěno díky vhodnému umístění domu na pozemku, promyšlené dispozici a mírnému vytočení domu od sousední stavby. Všechny inženýrské sítě jsou na hranici pozemku a součástí stavebního povolení je i výstavba příjezdové cesty, přípojek a čističky odpadních vod. V dosahu máte vše potřebné obchod je 4 minuty pěšky, zastávka autobusu jen 270 metrů, v centru Fulneku jste autem za 5 minut a do Ostravy se dostanete během 25 minut po dálnici. Tento pozemek kombinuje klid venkova s výhodami města. Navíc díky orientaci pozemku na jihozápad si budete moct vychutnat nespočet západů slunce přímo z Vašeho obýváku. Jste připraveni postavit svůj vysněný domov? Zavolejte mi pro více informací a domluvíme si prohlídku!
Rodinný dům Moravské Vlkovice
Dům č.p. 61 je nepodsklepený dvoupodlažní s podkrovím. Objekt č.p. 61 tvoří část dvojdomu s č.p. 62 (objekty mají společnou zeď). Objekty jsou…
Fulnek - Dům k bydlení i podnikání
Prodáme dům k bydlení i podnikání v centru města Fulneku, Masarykova 361. Celková zastavěná plocha a nádvoří uvedená v KN je 219 m2. Využití možné…