Makléř: Ing. Václav Adamčík
Telefon: 775 757 ...
E-mail: vaclav. ...
Zobrazit celý kontaktTelefon: 775 757 505, 739 604 767
E-mail: vaclav.adamcik@re-max.cz
Nemovitost nabízí
RE/MAX Centrum, Ostrava
Porážková 3339/46, 702 00 Moravská Ostrva
Zobrazit kontakt na RK
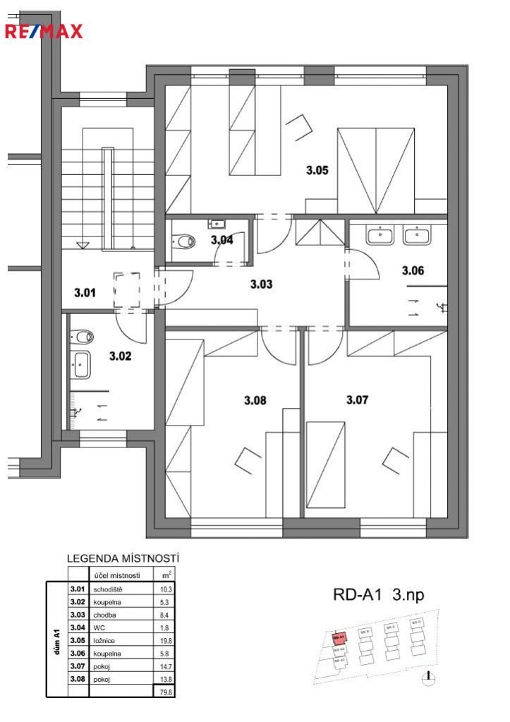
Nabízíme k prodeji prostorný dvoupodlažní dům 5+kk o velikosti 200,1 m v novém projektu Viladomy Jistebník. Dům je součástí bytového domu o třech domech zapuštěného do terénu s orientací na západ, což zajišťuje příjemné sluneční světlo. Součástí domu je terasa 13,8 m a k dispozici máte soukromou zahradu, která tvoří ideální místo pro relaxaci a posezení s rodinou. Vlastnosti domu A.1: Dvoupodlažní 5+kk, 200,1 m Terasa: 13,8 m, soukromá zahrada: 210 m 2 parkovací krytá stání, technická místnost a sklad Moderní standard bydlení světlé interiéry, praktické dispozice, kvalitní materiály a nízké provozní náklady Lokalita: Klidná obec Jistebník s rybníky a zelení Pár minut do Ostravy a lázní Klimkovic Dobrá dostupnost autem i MHD, vlaková zastávka, v blízkosti dálnice MŠ i ZŠ, restaurace, kavárny, sportovního vyžití, cyklotrasa Více na našem webu viladomyjistebnik. Výstavba začíná v říjnu 2025, k nastěhování 04/2027. Rezervujte si svůj nový domov v projektu Viladomy Jistebník ještě dnes! Kontaktujte nás pro více informací. S financováním vám pomůžeme kompletně - od výběru banky až po vyřízení hypotéky. <a href="https://www.eurobydleni.cz/domy/rodinny-dum/praha-zapad/obec-kamenny-privoz/prodej/"><strong>Prodej rodinného domu Kamenný Přívoz</strong></a>
Prodej, domy/rodinný, 140 m2, 74282 Jistebník, Nový Jičín [ID 80662]
Nabízíme k prodeji rodinný dům 4+1 o užitné ploše 140 m2 s větším pozemkem a možností půdní vestavby. Hledáte klidné místo k životu, kde si můžete…
Nový dům 5+kk (200 m )s terasou a zahradou 155 m Projekt Viladomy Jistebník
Nabízíme k prodeji prostorný dvoupodlažní dům 5+kk o velikosti 200,1 m v novém projektu Viladomy Jistebník. Dům je součástí bytového domu o třech…
Prodej rodinného domu Jistebník na Eurobydleni.cz