Makléř: Svoboda Lukáš
Telefon: 800 100 ...
E-mail: info@mm ...
Zobrazit celý kontaktTelefon: 800 100 446
E-mail: info@mmreality.cz
Nemovitost nabízí
M&M reality holding a.s.
Krakovská 1675/2, 110 00 Praha 1
Zobrazit kontakt na RK800 100 446
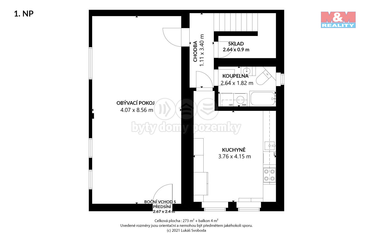
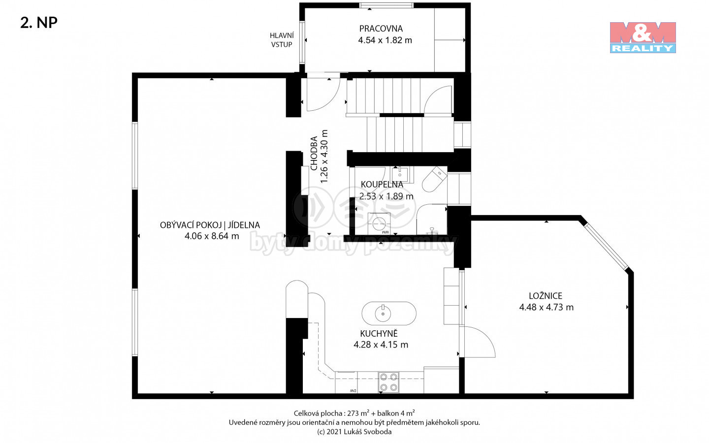
Nabízíme k prodeji velmi okázalou nemovitost, jejíž zámecký styl Vás rozhodně ohromí. Bydlení vypovídá o vybraném vkusu i prosperitě majitele a je nesmírná škoda neponechat domu jeho duši i nadále. Toto honosné vícegenerační sídlo, rozprostírající se na třech podlažích dosud sloužilo jako rodinný dům. Má dvě samostatné bytové jednotky, dostatek ložnic, koupelen i soukromí. Součástí komplexu je wellness s celoročním vyhřívaným bazénem (solární panely), saunou, společenskou místností a dobře vybaveným barem. Na famózní zahradě se krom dostatku prostoru pro venkovní aktivity nachází také masivní krb, altánek, zastřešené technické zázemí, které lze využít i jinak, stylová garáž a mnoho další parády. Celý pozemek je oplocen. Na přilehlém dvorku je kvalitní a udržovanou zámková dlažba, kde také najdete kryté stání. Možná nyní nastává čas změnit charakter rodinného domu a využít příležitost k investici, která následně povede ke krátkodobému pronájmu s výnosem zajímavých částek.
Prodej, Rodinný dům, Ostrava
Ve výhradním zastoupení vlastníka nabízím k prodeji rodinný dům s garáží a velkou rovinatou a udržovanou zahradou situovaný v Ostravě v části obce…
Prodej na klíče, Ostrava
Máte pozemek? Nechte si přivézt modulový dům Silver Moon, který vám doručíme do 6 měsíců. Cena začíná na 2 890 000 Kč a jsou možné individuální…