Makléř: Ing. Václav Hořínek
Telefon: 602 563 ...
E-mail: horinek ...
Zobrazit celý kontaktTelefon: 602 563 036
E-mail: horinek@1realitka.cz
Nemovitost nabízí
1. opavská realitka s.r.o.
Masarykova třída 25, 746 01 Opava
Zobrazit kontakt na RK553 716 551
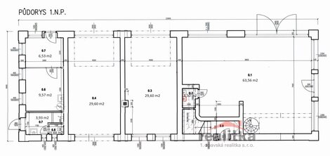
Nabízíme k prodeji komerční areál s rodinným domem a halou v Opavě, ul. Krnovská. Z Krnovské ulice je vjezd do průmyslového areálu. Průmyslový areál má zpevněné plochy pro parkování vozidel a skladování materiálu. Celková plocha pozemku je 1.602 m2. Rodinný dům s komerčním prostorem je zkolaudován v roce 2002. V 1.NP se nachází komerční prostory o výměře 144 m2 a zde se nachází 2x garáž, velká komerční prosklená místnost, WC, kuchyňka a prostor s kosmetickým salonem. V dalším poschodí se nachází byt o velikosti 6+kk 149 m2, zde se nachází schodiště se samostatným vchodem, chodba, WC, pracovna, 2x pokoj, dětský pokoj, obývací pokoj s jídelnou a kuchyní, ložnice, koupelna s vanou a WC, technická místnost. Vytápění domu je krbovými kamny a 2x plynovým kotlem. Teplá vody je zajišťována buď plynovým kotlem nebo 2x elektrickým bojlerem. Dále se v areálu nachází dvoupodlažní průmyslová hala o podlahové ploše 2x 214 m2. Hala byla zhotovena v roce 2008 a je řádně zkolaudovaná. Celý objekt je vhodný pro obchodní prostory nebo výrobnu. Celý areál lze také předělat minimálně na 7 bytových jednotek včetně parkovacích míst. Komerční areál je napojen na obecní vodovod, elektrickou energii, plyn a splaškovou veřejnou kanalizaci. Zajišťujeme také výhodné financování nemovitosti. Zájemci o prohlídku dle domluvy s panem Hořínkem..
Prodej moderně zrekonstruovaného rodinného domu 4+kk s terasou, ul. Hillova, Opava
Nabízíme k prodeji moderně zrekonstruovaný rodinný dům o dispozici 4+kk s terasou na ulici Hillova v Opavě. Dům prošel kompletní rekonstrukcí v…
Prodej rodinného domu 220 m2 Liliová, Opava
Hledáte výjimečný domov s historií a prostorem pro vlastní nápady? Pokud jste si na tuto otázku odpověděli ano, tak právě pro vás máme výjimečnou…