Makléř: Kohut Jaromír
Telefon: 777 663 ...
E-mail: kohut.j ...
Zobrazit celý kontaktTelefon: 777 663 670, 777 663 670
E-mail: kohut.jaromir@realitydrk.cz
Nemovitost nabízí
Listrum real s.r.o. - člen DRUŽSTVA REALITNÍCH KANCELÁŘÍ ČR
Májová 415/10, 735 42 Těrlicko - Horní Těrlicko
Zobrazit kontakt na RK596 811 051
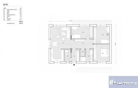
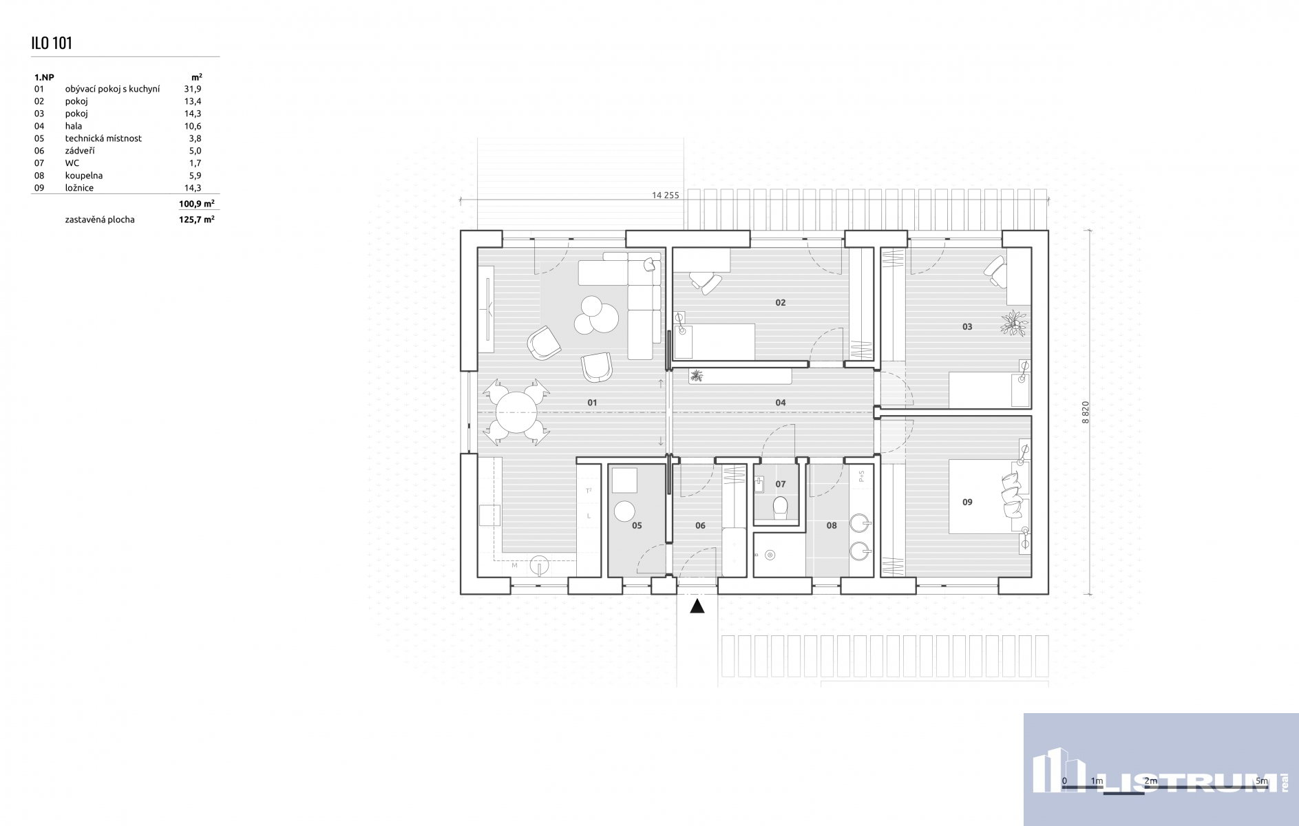
Nabídka k pořízení moderní dřevostavby ve fázi projektu s výstavbou na klíč od renomované společnosti ILO DOMY. Jednopodlažní dům s podlahovou plochou 101 m2 a zastavěnou plochou 126 m2 nabízí komfortní dispozici 4+kk, která je ideální pro rodinné bydlení. Dům bude postaven na prostorném a velmi pěkném pozemku s výhledem do širokého okolí o velikosti 1.500 m2 v obci Horní Domaslavice. Moderní dřevostavba je navržena s důrazem na kvalitu, energetickou úspornost a ekologii. Vytápění domu je zajištěno efektivním tepelným čerpadlem, což zaručuje nízké provozní náklady a šetrnost k životnímu prostředí. Součástí domu je také čistička odpadních vod. Sjezd na pozemek je zajištěn z obecní asfaltové komunikace. Dispozice domu zahrnuje prostorný obývací pokoj s kuchyňským koutem (31,9 m2), tři samostatné ložnice (14,3 m2, 14,3 m2, 13,4 m2), prostornou koupelnu s moderním vybavením (5,9 m2), samostatné WC, technickou místnost (3,8 m2), halu (10,6 m2) a zádveří. Dům je možné pořídit ve dvou barevných variantách, podle Vašich preferencí. Z obývacího pokoje a dvou ložnic, které jsou situovány do zahrady, je vstup přímo na zahradu nebo na terasu. Z těchto pokojů je také krásný výhled do širokého okolí a na Žermanickou přehradu. Exteriér domu kombinuje klasickou a strukturovanou omítku, přičemž čelo domu je obloženo dřevěným obkladem. V ceně je obsažen pozemek, základová deska a dům s finálními povrchy v interiéru. V ceně nejsou započítány terénní úpravy pozemku, napojení na inženýrské sítě, čistička odpadních vod a kuchyňská linka. Dům je také možno pořídit i tzv. K dokončení, kdy oproti standardní variantě není dodáno tepelné čerpadlo, výmalba, obklady, dlažba, sanita a interiérové dveře. V této variantě stojí dům 6.540.000,-Kč. Obec Horní Domaslavice je klidná a velmi pěkná lokalita v blízkosti Žermanické přehrady a s výhledem na ni, stejně tak i na panorama Beskyd, která nabízí příjemné bydlení v blízkosti přírody, ale současně s vynikající dostupností do Ostravy, F-M, Havířova a na dálnici D48 (5 km). V blízkém okolí najdete základní občanskou vybavenost, jako jsou obchody, školka, škola, sportovní zařízení. Okolí obce je ideální pro milovníky přírody a aktivního odpočinku, s množstvím turistických a cyklistických tras. Tento projekt je ideální volbou pro ty, kteří hledají moderní a ekologické bydlení v klidné lokalitě s rychlým přístupem do města. Neváhejte nás kontaktovat pro více informací a sjednání prohlídky. <a href="https://www.eurobydleni.cz/byty/2_1/frydek-mistek/obec-frydek-mistek/prodej/"><strong>Prodej bytu 2+1 Frýdek-Místek</strong></a>
Prodej rodinného domu, 166m2, Horní Domaslavice
Hledáte výjimečnou kombinaci prostoru a soukromí? V Horních Domaslavicích se nemovitost k prodeji objeví jen málokdy a tato je skutečným skvostem.…
RD 4+kk v obci Horní Domaslavice
Nabídka k pořízení moderní dřevostavby ve fázi projektu s výstavbou na klíč od renomované společnosti ILO DOMY. Jednopodlažní dům s podlahovou…
Prodej rodinného domu Horní Domaslavice na Eurobydleni.cz